Die Wohnung entspricht dem Standard der Ferienwohnung Nr. 3
Unsere hellste Ferienwohnung im 1. Stock für Familien mit bis zu 2 Kindern mit zwei großen Balkonen mit Blick auf die Liegewiese und auf die heimischen Berge sowie einem Balkon mit Blick auf die Liegewiese
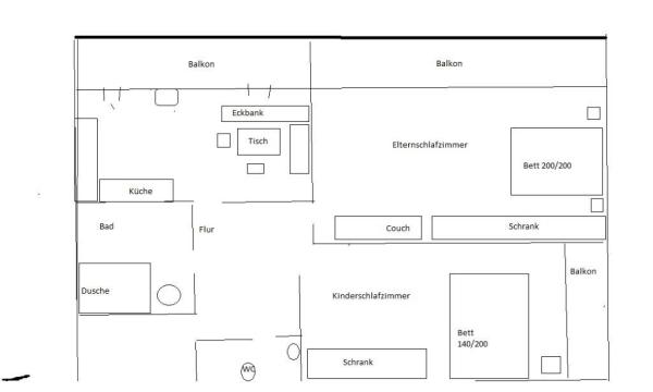
Eine gemütliche Ferienwohnung für Familien mit 2 Kindern. Zwei Terrassen mit herrlichem Blick auf die heimischen Berge. Es sind Backofen, Spülmaschine und Fernseher vorhanden.
Unsere „Große Wohnung“ für Familien mit bis zu 4 Kindern mit 2 Balkonen und Blick auf unsere Pferdewiese und die Berge.
Unsere hellste Ferienwohnung im 2. Stock für Familien mit bis zu 2 Kindern mit einem Balkon mit Westblick auf die Liegewiese
Unsere neue moderne, seniorenfreundliche Ferienwohnung Nr. 7 in unserem Neubau. Die Wohnung ist 96qm groß und bietet Platz für sechs Personen, befindet sich im zweiten Stock und ist mit einem Aufzug zu erreichen.
Unsere neue moderne, seniorenfreundliche Ferienwohnung Nr. 8 in unserem Neubau. Die Wohnung ist 96qm groß und bietet Platz für sechs Personen, befindet sich im zweiten Stock und ist mit einem Aufzug zu erreichen.
Das Gästezimmer bietet eine gemütliche und einladende Atmosphäre. Die Einrichtung verbindet traditionellen Charme mit modernem Komfort.
